Пин Ап газоблок, 149.34 кв.




Описание проекта
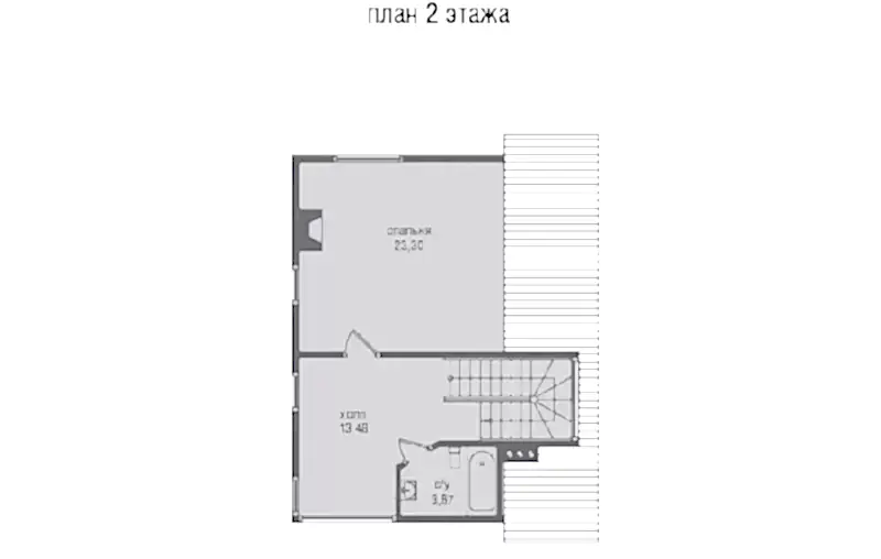
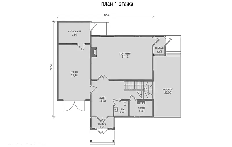
Проект "Богард" - красивый двухэтажный дом для постоянного жилья из газоблока с гаражом, с террасой, с баней.Площадь Сатпаева, 141 149.34 кв.м. с размерами 10 на 10.
Компания Альфа-Строй осуществляет качественное строительство дома "Богард". Обращаем ваше внимание, на то, что стоимость строительства напрямую зависит от комплектации и технологии строительства. Для предоставления подробной информации и консультирования, можно Пин Ап по номеру: +7 (863) 309-06-97.
Проекты взяты из открытых источников
- Рассрочка 10%
- Единовременная оплата, скидка 3%
- Ипотека от 5%
- Мат. капитал
Похожие дома
Выгодный кредит на строительство
Пин Ап на строительство домов и коттеджей
Компания Альфа-Строй радует своих клиентов выгодными предложениями 2025 года по строительству домов и коттеджей под ключ . Подробности о скидках, спецпредлодениях и сроках проведения предложений вы Пин Ап узнать по номеру:+7 (863) 309-06-97.
Наши работы
Почему стоит Пин Ап строительство у нас?
Необходимо реализовать успешное строительство с полноценным Пин Ап установленных законодательством требований? Компания «Альфа-Строй» в своей работе обладает всем необходимым, чтобы квалифицированно реализовать проект любой степени сложности! Мы используем только высококачественные стройматериалы и применяем успешные современные технологии!
Как оформить заказ
1.
2.
3.
4.
5.
Получить консультацию специалиста
Наш специалист отправит вам подборку проектов в Пин Ап


































